Вертикально-сверлильный станок 2Т140
Вертикально-сверлильный станок 2Т140 - мощный сверлильный станок , предназначенный для выполнения следующих видов операций по металлу:
- сверление;
- зенкерование;
- зенкование;
- рассверливание;
- подрезка торцевых поверхностей;
- нарезание резьб различных типов.
Технические особенности станка 2Т140
Вертикально-сверлильный станок 2Т140 позволяет сверлить отверстия диаметром до 40 мм и нарезать резьбу M24Мощность станка 2Т140 - 2.2 Квт.
Масса станка 2Т140 - 575 кг.
Габариты станка 2Т140 - 950x560x2200
Простота конструкции обеспечивает легкость управления, надежность и долговечность станков.
Сверление на вертикальном станке 2Т140 осуществляется подачей шпинделя вручную или механически. Механическая подача шпинделя отключается автоматически при достижении заданной глубины отверстия. Ручная подача контролируется по шкале линейки, установленной на корпусе шпиндельной бабки.
На станке возможно, также, нарезание резьбы как с ручным включением реверсирования шпинделя, так и с автоматическим включением ревесирования на заданной глубине резьбы.
Шпиндельная бабка (сверлильная головка) станка имеет возможность перемещаться по колонне в пределах 240 мм. Шпиндель перемещается на 160 мм
Детали могут закрепляются как на рабочем столе, так и на фундаментной плите. Рабочий стол крепится на колонне и регулируется по высоте в пределах 500 мм. Стол может, также, вращаться вокруг колонны и поворачиваться вокруг своей оси, что позволяет обрабатывать наклонные отверстия.
Особенности применения станка 2Т140
В силу широких возможностей применения различного инструмента вертикально-сверлильный станок 2Т140 относится к универсальному сверлильному оборудованию и подходит для единичного и мелкого серийного производства. При наличии специального оснащения станок 2Т140 можно использовать и для выполнения некоторых операций в массовом или крупном серийном производстве.
Вертикально-сверлильный станок 2Т140 может работать с механической или ручной подачей шпинделя. Нарезание резьб при этом осуществляется с реверсированием шпинделя, в ручном или автоматическом режимах.
Срок гарантийного обслуживания станка 2Т140 - 12 месяцев.
Вертикально-сверлильный станок 2Т140 широко используется в крупно- и мелкосерийном производстве.
Расположение основных узлов вертикально-сверлильного станка 2Т140
- Сверлильная головка
- Основание
- Колонна
- Стол рабочий подъемно-поворотный
- Корпус
- Электрошкаф
- Охлаждение
- Ограждение
Расположение органов управления сверлильным станком 2Т140
- Рукоятка переключения скоростей шпинделя
- Рукоятка переключения скоростей шпинделя
- Рукоятка переключения механической подачи шпинделя шпинделя
- Рукоятка переключения механической или ручной подачи шпинделя шпинделя
- Рукоятка выбора глубины сверления
- Хвостовик зажима и разжима корпуса на колонне
- Хвостовик зажима и разжима корпуса на колонне
- Хвостовик перемещения сверлильной головки по колонне
- Рукоятка зажима и разжима рабочего стола на колонне
- Рукоятка зажима и разжима рабочего стола на колонне
- Хвостовик перемещения рабочего стола по колонне
- Рукоятка зажима и разжима рабочего стола в кронштейне
- Переключатель охлаждения
- Переключатель освещения
- Переключатель режима: резьбонарезание - сверление
- Кнопка включения питания
- Кнопка аварийного отключения станка
- Кнопка включения левого вращения шпинделя
- Кнопка включения правого вращения шпинделя
- Кнопка толчкового включения шпинделя
- Кнопка "Стоп" шпинделя
- Вводной выключатель
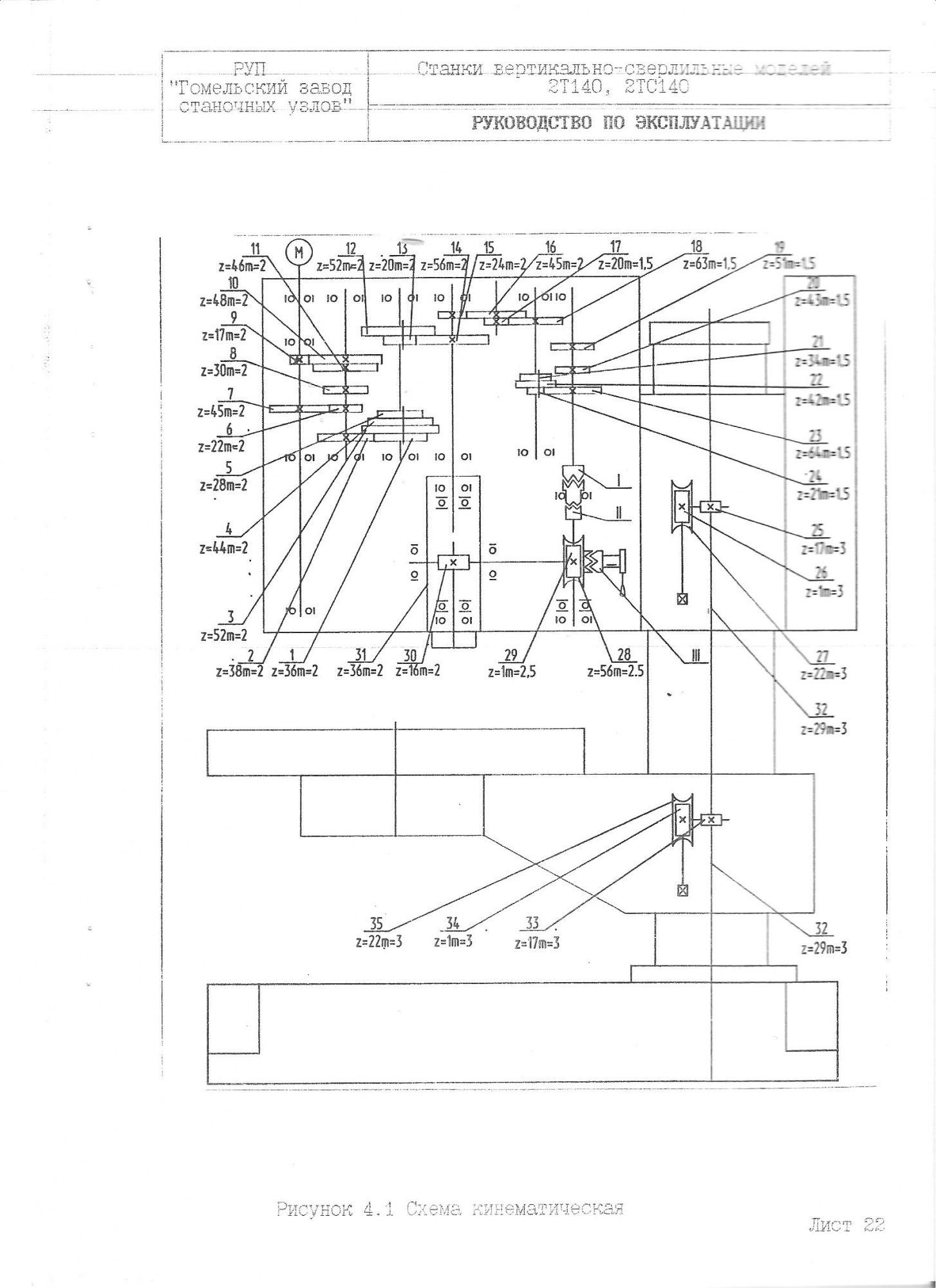
Кинематическая схема вертикально-сверлильного станка 2Т140
Описание основных узлов вертикально-сверлильного станка 2Т140
Коробка скоростей вертикально-сверлильного станка 2т140
Механизм подачи шпинделя вертикально-сверлильного станка 2т140
Шпиндель вертикально-сверлильного станка 2т140
Установочный чертеж вертикально-сверлильного станка 2Т140
|
Макс. Ø сверления (сталь), мм
|
40 |
|
Размеры раб. поверхности стола, мм
|
500x500 |
|
Диапазон скоростей шпинделя, об/мин
|
75-1800 |
|
Макс. Ø нарезаемой резьбы (сталь), мм
|
M24 |
|
Макс. Ø сверления (чугун), мм
|
45 |
|
Количество скоростей шпинделя
|
8 |
|
Количество подач шпинделя
|
3 |
|
Диапазон подач шпинделя, мм/об
|
0.1/0.2/0.3 |
|
Расстояние от оси шпинделя до колонны, мм
|
300 |
|
Расстояние от торца шпинделя до стола, мм
|
0-1100 |
|
Ход пиноли шпинделя, мм
|
160 |
|
Установочный ход стола, мм
|
500 |
|
Вертик. ход сверл. головки, мм
|
240 |
|
Конус шпинделя, Морзе
|
KM4 |
|
Размеры раб. поверхности плиты, мм
|
560x560 |
|
Диаметр колонны, мм
|
145 |
|
Мощность двигателя, кВт
|
2.2 |
|
Габаритные размеры, мм
|
950x560x2200 |
|
Масса, кг
|
575 |
-
Втулки ГОСТ 13598
-
6100-0142
-
6100-0143
-
Клин 7851-0012 ГОСТ 3025-78
-
Рукоятка
-
Ключи для электрошкафа
-
Ключ для сливных пробок
Дополнительная оснастка (поставляется за отдельную плату):
- Патрон сверлильный 6150-4029-04;
- Тиски станочные чугунные поворотные
- Патрон резьбонарезной 6162-4003 (М4...М12);
- Комплект предохранительных головок (для патрона резьбонарезного 6162-4003): - головка 6251-4002 (М3);
- Патрон резьбонарезной 6162-4003-03 (М14...М24);
- Комплект предохранительных головок (для патрона резьбонарезного 6162-4003-03): - головка 6251-4002-07 (М14);
- головка 6251-4002-01 (М4);
- головка 6251-4002-02 (М5);
- головка 6251-4002-03 (М6-М8);
- головка 6251-4002-04 (М8-М10);
- головка 6251-4002-05 (М10);
- головка 6251-4002-06 (М12);
- головка 6251-4002-08 (М16);
- головка 6251-4002-09 (М18-М20);
- головка 6251-4002-10 (М22);
- головка 6251-4002-11 (М24).





